Để giúp nhà đầu tư và người quan tâm bất động sản dễ dàng nghiên cứu thông tin, chúng tôi chia sẻ file PDF quy hoạch 1/500 khu B dự án Vin Olympic Hà Nội để bạn có thể tham khảo chi tiết cấu trúc quy hoạch của phân khu này.
.jpg)
Khu đô thị thể thao Olympic được quy hoạch với quy mô rất lớn, lên tới khoảng 9.000 ha, nằm tại khu vực phía Nam Hà Nội, trải rộng trên các địa bàn như Thanh Trì, Thường Tín và Thanh Oai.
Mục tiêu của dự án là xây dựng một đại đô thị thể thao kết hợp khu dân cư, thương mại và dịch vụ hiện đại, góp phần tạo ra trung tâm phát triển mới của Thủ đô trong tương lai.
Điểm nhấn của dự án là sân vận động Trống Đồng với quy mô dự kiến khoảng 135.000 chỗ ngồi, được kỳ vọng trở thành sân vận động lớn nhất Việt Nam và một trong những công trình thể thao nổi bật trong khu vực.
Trong tổng thể dự án Vin Olympic, khu đô thị được chia thành nhiều phân khu nhằm phát triển đồng bộ. Khu B được xem là khu vực trọng tâm trong giai đoạn đầu triển khai dự án.
Phân khu này có vai trò quan trọng với nhiều chức năng như:
Trung tâm thể thao quy mô lớn
Khu đô thị hiện đại với các loại hình nhà ở
Khu thương mại và dịch vụ
Hệ thống công viên và không gian công cộng
Với vị trí trung tâm trong quy hoạch, khu B được đánh giá là khu vực có tiềm năng phát triển mạnh khi dự án hoàn thiện.
.jpg)
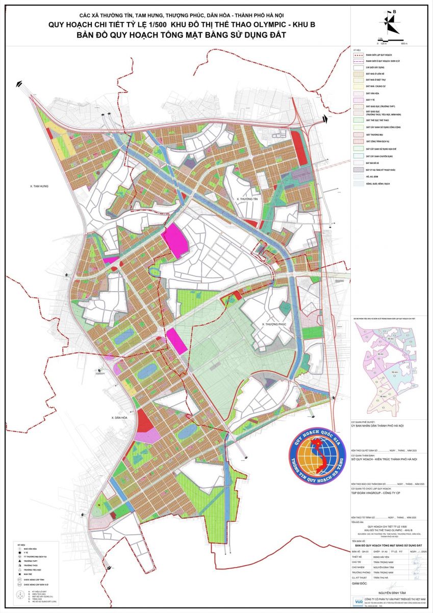
File PDF quy hoạch chi tiết tỷ lệ 1/500 khu B dự án Vin Olympic cung cấp nhiều thông tin quan trọng về cấu trúc phát triển của khu đô thị.
Các nội dung đáng chú ý trong tài liệu bao gồm:
Tải về Quy hoạch 1/5 khu B - File 1
Tải về Quy hoạch 1/5 khu B - File 2
File thể hiện rõ vị trí của khu B trong tổng thể dự án Vin Olympic, giúp người xem hiểu được mối liên kết với các phân khu khác trong đại đô thị.
Bản đồ quy hoạch thể hiện chi tiết các khu chức năng như:
khu nhà ở thấp tầng
khu chung cư cao tầng
khu thương mại dịch vụ
khu thể thao
công viên cây xanh và hồ cảnh quan
Quy hoạch cũng thể hiện chi tiết hệ thống giao thông nội khu với các tuyến đường lớn kết nối trực tiếp với các trục giao thông chính của khu vực.
Ngoài khu nhà ở, quy hoạch còn bố trí nhiều tiện ích đô thị như:
trường học
trung tâm thương mại
khu thể thao
công viên cây xanh
Trong giai đoạn thị trường bất động sản Hà Nội đang dịch chuyển về phía Nam và phía Tây, các dự án quy mô lớn như Vin Olympic đang thu hút sự chú ý của nhà đầu tư.
Việc nghiên cứu bản đồ quy hoạch 1/500 khu B Vin Olympic giúp người quan tâm hiểu rõ hơn về định hướng phát triển khu vực, từ đó đánh giá được tiềm năng đầu tư trong tương lai.
Một số yếu tố khiến khu vực này được chú ý gồm:
Quy mô dự án rất lớn
Hạ tầng giao thông khu vực đang phát triển mạnh
Quy hoạch đô thị đồng bộ
Tiềm năng trở thành trung tâm thể thao lớn của Hà Nội
Để thuận tiện cho việc nghiên cứu và tham khảo thông tin quy hoạch, bạn có thể tải file tài liệu tại đây:
Link tải file PDF quy hoạch 1/500 khu B Vin Olympic Hà Nội:
(Chèn link tải file)
Tài liệu này sẽ giúp bạn:
xem chi tiết bản đồ quy hoạch
phân tích cấu trúc đô thị
tìm hiểu các khu chức năng trong phân khu B
bds789.com là website chuyên cung cấp thông tin, phân tích và tư vấn bất động sản Hà Nội, tập trung vào các khu vực trọng điểm như phía Nam Hà Nội, Hà Đông, Thường Tín, Phú Xuyên, Thanh Oai.
Chúng tôi mang đến:
Thông tin dự án chính xác, cập nhật
Phân tích đầu tư chuyên sâu, khách quan
Tư vấn lựa chọn sản phẩm phù hợp nhu cầu ở và đầu tư
bds789.com – Đồng hành cùng nhà đầu tư trong từng quyết định bất động sản.